比較資料
カートへ入れる
比較表
作成する
カート
空にする

トンネル坑口コンクリート充填2層式防音扉「Model-50」

2021/08/11 更新
  • コンクリート充填2層式防音扉「Model-50」全景写真
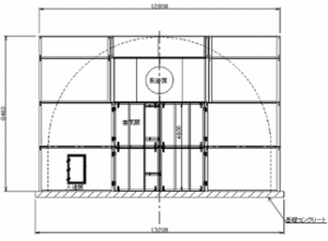
  • コンクリート充填2層式防音扉「Model-50」一般図(正面図)
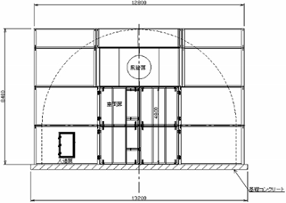
  • コンクリート充填2層式防音扉「Model-50」一般図(平面図)

NETIS登録番号:KK-170040-A

概要

トンネル発破掘削において、坑口に接して外側に設置する騒音・低周波音を減衰させるコンクリート充填式壁構造のブロックを用いた2層式防音扉。50t吊りクレーンで積み上げる組立方式で、ブロック構造部は転用可能とし風管部に回転式重量扉を設けた。組立後総重量160tと大きいため、減衰効果が騒音40dB・低周波音35dBと大きい。

続きを見る

youtubeを見る お問い合わせ
お気に入りに登録
カートへ入れる

新規性

・本体をブロック構造とし、コンクリートを2層に充填した防音扉である。
・防音扉全体をブロック化し、クレーンで積み上げていく組立方式としている。
・防音扉の総重量を最大160tにした。
・ブロック構造部は転用可能を基本としている。
・風管部にコンクリート充填回転扉を備え付けている。

期待される効果

・坑口に接して外側に設置することと、コンクリート壁厚が15cmと強固なため、坑口と発破箇所との離隔が10m程度で設置可能である。そのため、早期に防音扉の設置が可能である。(従来技術の場合、坑口の内側に設置することと、表面は鉄板のみで発破による飛散物により破損の恐れがあるため、坑口と発破箇所との離隔が30m程度必要である。)
・騒音の減衰効果は、40dB(実験値は42.9dB)である。(従来技術の騒音の減衰効果は28dB)
・低周波音の減衰効果は、35dB(実験値は38.0dB)である。(従来技術の低周波の減衰効果は19dB)
・大きな騒音の減衰効果により近接する民家への影響が少ないと考えられる。
・坑口に接した坑外に設置するため、とび工が防音扉と坑口支保工の接続のみで、ブロックの接合はボルト接合のみなど組立の簡易化により、特殊作業員や機械工などの熟練工は必要としない。
・各部がブロックユニットであり、転用が可能であり、大部分産廃処理が不要である。最大5現場で転用の実績があり、リサイクル性が向上する。

適用条件

①自然条件
悪天候時は作業を行わない。

②現場条件
・標準施工機械として50tクレーンを使用するので、クレーン設置スぺ―ス(13m×8m=104㎡)と、トレーラー搬入スペース(4m×20m=80㎡)の合計184㎡以上必要である。
・坑外に設置するため、トンネル断面にあわせて任意に設定可能であり、最小ユニット構成は風管扉ユニットと車両扉ユニットがトンネル断面に収まれば適用可能である。
・基本構成は幅12.8m、高さ8.4m以上の設置スペースが必要である。

③技術提供可能地域
・制限なし。
・輸送費は地域、防音扉部材量によって異なる。

④関係法令等
特になし。

使用する機械・工具

  • 高所作業車
  • バックホウ
  • ラフテレーンクレーン

施工事例・施工実績

施工手順

会社情報

会社名
テクノプロ(株)
TEL
078-964-2760
企業情報
公式サイト

特集

このカテゴリーでよく比較される工法

!

エラーが発生しました。

次のいずれかの理由が考えられます。

比較可能な数量を超えたため
カートに追加できませんでした。
比較できる点数は20点までです。
「工種・工法」と「資材」を同時に
比較することはできません。
カート内を整理してご利用ください。
2点以上をカートに追加してください。
カート内容を確認する カート
空にする
!

カートへの追加
ありがとうございます。

会員登録をすれば、
カートに入れた製品の
比較表のダウンロードができます。

会員の方はこちら(ログイン) 新規会員登録
!

お気に入り登録
ありがとうございます。

会員登録をすれば、マイページより
いつでもお気に入り登録した商品を
見返すことができます。

会員の方はこちら(ログイン) 新規会員登録