比較資料
カートへ入れる
比較表
作成する
カート
空にする

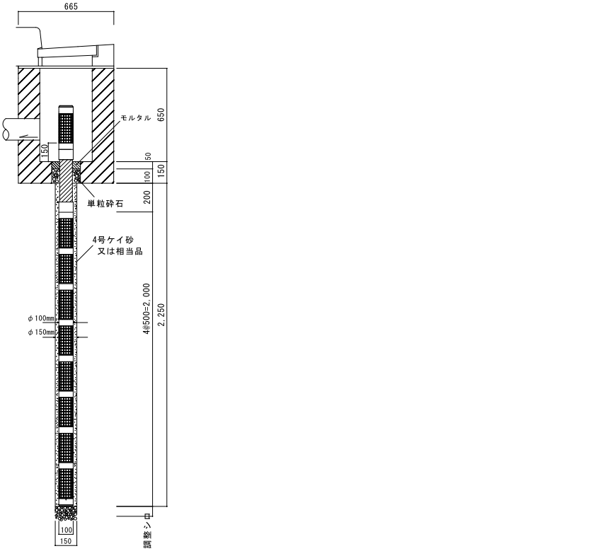
縦型雨水浸透施設(JSドレーン工法)

2022/07/07 更新
  • 新技術で既設集水桝を浸透桝に更新した場合の模式図
  • 新技術による街渠桝の浸透化例(断面図)

NETIS登録番号:KT-200078-A

概要

鉛直方向に埋設したスティックフィルターで、雨水を地中に浸透させる技術。

お問い合わせ
お気に入りに登録
カートへ入れる

新規性

既設集水桝を撤去し、ポーラスコンクリート製の雨水浸透桝を新設する方法から、既設集水桝底部から樹脂製ドレーン材(スティックフィルター)を地中に埋設することで既設集水桝を雨水浸透桝に更新する方法に変えた。

期待される効果

・既設枡を温存する方法に変えたことにより、既設枡の撤去工程が不要になるため、工程の短縮、施工性と経済性の向上が図れる。
・不織布を溶着した樹脂製のドレーン材に変えたことにより、使用材料重量が軽減されるため、安全性の向上が図れる。
・既設の集水枡を温存し、雨水浸透枡に更新する方法に変えたことにより、廃棄物の発生が抑制できるため、周辺環境への影響抑制が図れる。また、廃棄物処理費用が削減されるため、経済性の向上が図れる。

適用条件

① 自然条件
・雨天時の施工は禁止
② 現場条件
・作業スペース 3m×9m程度
・使用施工機:バックホウ(クローラ型、山積0.11m3(平積0.08m3)程度)
③ 技術提供可能地域
・技術提供地域については制限なし。
④ 関係法令等
・各自治体の基準
・社団法人雨水貯留浸透技術協会編:発行 増補版 雨水浸透施設技術指針(案)、調査・計画編、平成24年
・社団法人雨水貯留浸透技術協会編:発行 増補版 雨水浸透施設技術指針(案)、構造・施工・維持管理編、平成19年

施工事例・施工実績

施工手順

会社情報

会社名
城東リプロン(株)
TEL
03-6281-5936
企業情報
公式サイト

このカテゴリーでよく比較される工法

!

エラーが発生しました。

次のいずれかの理由が考えられます。

比較可能な数量を超えたため
カートに追加できませんでした。
比較できる点数は20点までです。
「工種・工法」と「資材」を同時に
比較することはできません。
カート内を整理してご利用ください。
2点以上をカートに追加してください。
カート内容を確認する カート
空にする
!

カートへの追加
ありがとうございます。

会員登録をすれば、
カートに入れた製品の
比較表のダウンロードができます。

会員の方はこちら(ログイン) 新規会員登録
!

お気に入り登録
ありがとうございます。

会員登録をすれば、マイページより
いつでもお気に入り登録した商品を
見返すことができます。

会員の方はこちら(ログイン) 新規会員登録