比較資料
カートへ入れる
比較表
作成する
カート
空にする

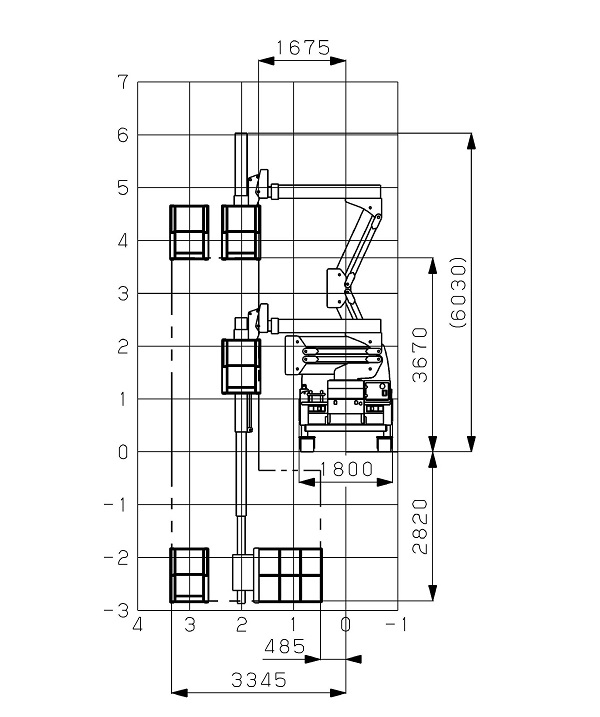
車両設置幅1.8mの道路施設点検車

2021/12/16 更新
  • 作業範囲図
  • 点検車の概要図

NETIS登録番号:HR-200003-A

概要

車両設置幅が1.8mで使用できる道路施設点検車。

お問い合わせ
お気に入りに登録
カートへ入れる

新規性

・昇降装置を直伸ブーム式からΣ型垂直リンク式に変えた。
・マスト角度を変えるチルト機能を装備した。

期待される効果

・Σ型リンク式に変えたことで、高所作業装置の重心が低くなり、車両設置幅1.8mでの作業が可能となる。これにより路肩幅2.5mの現場では交通規制が最小限となり経済性と工程が向上する。
・マスト角度を変えるチルト機能を装備したことにより、傾斜路面でも作業床を水平に保つことができ、作業の安全性が向上する。

適用条件

① 自然条件
気象条件(降雨(水位)、強風、降雪、地震等)により危険が予見される場合には作業不可。
② 現場条件
・道路占有面積は9.25㎡(全長5.14m×全幅1.8m=9.25㎡)必要。
③ 技術提供可能地域
・技術提供可能地域については制限なし。
④ 関係法令等
・道路運送車両法

施工事例・施工実績

施工手順

会社情報

会社名
(株)ワイケー
TEL
027-386-3337
企業情報
公式サイト

このカテゴリーでよく比較される工法

!

エラーが発生しました。

次のいずれかの理由が考えられます。

比較可能な数量を超えたため
カートに追加できませんでした。
比較できる点数は20点までです。
「工種・工法」と「資材」を同時に
比較することはできません。
カート内を整理してご利用ください。
2点以上をカートに追加してください。
カート内容を確認する カート
空にする
!

カートへの追加
ありがとうございます。

会員登録をすれば、
カートに入れた製品の
比較表のダウンロードができます。

会員の方はこちら(ログイン) 新規会員登録
!

お気に入り登録
ありがとうございます。

会員登録をすれば、マイページより
いつでもお気に入り登録した商品を
見返すことができます。

会員の方はこちら(ログイン) 新規会員登録