比較資料
カートへ入れる
比較表
作成する
カート
空にする

吸引掘削システム

2023/02/06 更新
  • 少人数での作業
  • アタッチメントが入る幅で掘削可能
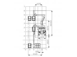
  • 各機材の仕様
  • 埋設物調査工イメージ

概要

吸引車(バキューム車)および専用アタッチメントを用いて掘削する工法で、既設の埋設物(水道・ガス・電気・通信などの管路)を傷つけることなく安全に土砂等を掘削する。狭い場所でもホースを伸ばすことで施工が可能。手掘りに近い繊細な施工性と、手掘りより確実で迅速な作業を実現する革新的な掘削工法。
 ※特許第6157035号
 ※実用新案第3201072号

続きを見る

お問い合わせ
お気に入りに登録
カートへ入れる

新規性

狭い場所でも安全かつ効率的に行うことが出来るため、重機掘削前の試掘工(埋設物調査工)や小型構造物の基礎掘削工などの需要が高い。
 ・狭い場所でも、ホースを伸ばすことで施工できる。
 ・掘削穴に入らず地上面から作業可能で、人身災害を低減。
 ・埋設物を目視で確認できる。
 ・吸引装置が接触しても、埋設物は破損しない。
 ・手掘りに比べて少人数で作業が出来、リスクも軽減。
 ・土砂と水を吸引するので、水が出た場合も安心。
 ・水を使わない乾式吸引のため発生土をそのまま埋め戻しに使用できる。

期待される効果

掘削構内の既存埋設物を確認し、事前に十分な対策を講じることで、機材の接触による破損や事故を抑止する。掘削穴に入らず地上面から作業することで作業者の安全を確保するとともに、施工品質向上を図る。ハンドホール・マンホール内の溜水の排出といった課題にも対処可能。最小4名からの少人数施工に対応するため、人件費削減にも貢献する。吸引した発生土はタンクに収納するため現場を汚さず、搬出の手間もない。

適用条件

・アタッチメントの内径125Φ以内のサイズなら何でも吸引可能。
・掘削穴に入らず地上面から作業可能。
・掘削の深さは4Mまで実績あり。
・ホース延長は50Mまで実績あり。

施工事例・施工実績

施工手順

会社情報

会社名
山美津電気(株)
TEL
03-3851-0578
企業情報
公式サイト

特集

このカテゴリーでよく比較される工法

!

エラーが発生しました。

次のいずれかの理由が考えられます。

比較可能な数量を超えたため
カートに追加できませんでした。
比較できる点数は20点までです。
「工種・工法」と「資材」を同時に
比較することはできません。
カート内を整理してご利用ください。
2点以上をカートに追加してください。
カート内容を確認する カート
空にする
!

カートへの追加
ありがとうございます。

会員登録をすれば、
カートに入れた製品の
比較表のダウンロードができます。

会員の方はこちら(ログイン) 新規会員登録
!

お気に入り登録
ありがとうございます。

会員登録をすれば、マイページより
いつでもお気に入り登録した商品を
見返すことができます。

会員の方はこちら(ログイン) 新規会員登録