比較資料
カートへ入れる
比較表
作成する
カート
空にする

タテメジャー

2025/08/15 更新
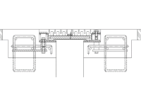
  • 製品単体
  • 製品断面図
  • 施工後イメージ

概要

縦目地部発生する段差をスムーズに吸収する、縦目地用ゴムジョイント。
走行性のみにとらわれず、安全性をも考慮したこのジョイントは、過酷な車社会にフレキシブルで、安全で、快適な走行性で貢献するものである。
標準遊間230㎜に対応可能。

お問い合わせ
お気に入りに登録
カートへ入れる

提供可能地域

北海道 東北 関東 北陸 中部 近畿 中国 四国 九州 沖縄
型番 質量
(kg/1.8m)
伸縮量
常時性能
橋軸方向
(mm)
伸縮量
常時性能
橋軸直角方向
(mm)
許容移動量
地震時性能
橋軸方向
(mm)
許容移動量
地震時性能
橋軸直角方向
(mm)
標準遊間
中立温度時
(mm)
最大床版遊間
最低温度時
(mm)
対応可能斜角
(°)
建設物価
(品目コード)
土木コスト
(掲載ページ)
LJ-50 152.0 70.0 ±20 230.0
設置区分
車道用 歩道用 縦目地
タイプ
荷重支持型 突合せ型 埋設型
装備
積雪地対応 二次止水 地覆止水
適用
コンクリート橋用 鋼橋用 鋼床版用
構造性
・ゴム荷重支持型で表層ゴム、受板(荷重支持板)、受台、アンカーボルトが分離構造となっている。
・表面ゴム材料は耐久性に優れたクロロプレンゴムを使用。
耐久性
・分離構造であるため表層ゴムの摩擦による鋼板の露出は無く、錆が発生しにくい為耐久性には優れている。
走行性
・表面ゴムが伸縮を菱形孔の弾性変位で吸収し、ジョイント表面を平坦に保つため走行性は良好である。
止水性
・アンカーボルト孔にシール材を充填、ジョイント下面にシール材を塗布し、止水機能を備えている。
環境性(騒音)
・ゴム弾性により車両通過時の衝撃を吸収分散するため、騒音は小さい。
施工性
・表層ゴム、受板、受台、アンカーボルトに分割されており、一つ一つの部材の扱いは容易である。
維持管理性
・高ナット式アンカーボルトの使用により、後打ちコンクリートをハツることなく部品交換補修が可能。
・定尺のみの交換等、必要な部分のみの補修が可能である。
推定耐用年数(参考値)
20年(参考値)
社内試験:
衝撃係数を加えた輪荷重140kNに相当する荷重を作用させ、200万回の試験における耐久性を確認している。
日本道路協会「鋼道路橋の疲労設計指針」(平成14年3月)より、疲労設計にあたって考慮する疲労設計荷重の載荷頻度は下記に基づいて算出し、「大型車交通量約9,000台/車線/日以下」の交通量で、30年相当であると見込んでいる。
nti=ADTTSLi・γn・365・Y
=9,000(台/日)×365(日)×0.03(指定係数)×30(年)
=2,956,500回(30年相当)
経済性(初期コスト)
お問い合わせください。
経済性(LCC)
お問い合わせください。

会社情報

会社名
ニッタ(株)
TEL
06-6563-1211
企業情報
公式サイト

このカテゴリーでよく比較される資材

!

エラーが発生しました。

次のいずれかの理由が考えられます。

比較可能な数量を超えたため
カートに追加できませんでした。
比較できる点数は20点までです。
「工種・工法」と「資材」を同時に
比較することはできません。
カート内を整理してご利用ください。
2点以上をカートに追加してください。
カート内容を確認する カート
空にする
!

カートへの追加
ありがとうございます。

会員登録をすれば、
カートに入れた製品の
比較表のダウンロードができます。

会員の方はこちら(ログイン) 新規会員登録
!

お気に入り登録
ありがとうございます。

会員登録をすれば、マイページより
いつでもお気に入り登録した商品を
見返すことができます。

会員の方はこちら(ログイン) 新規会員登録